| 產品描述 | 技術參數 | 包裝參數 | 技術文檔 | ||||||
|
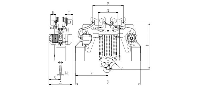
【產品名稱】20噸低凈空環鏈電動葫蘆 【產品品牌】龍升牌 【產品規格】20T,八鏈 【產品保質】機械部分保質12個月,電氣部分保質6個月 【產品定制】特殊工作電壓可定制:220V、380V、440V;非標行程可定制 【是否現貨】現貨供應 【典型應用】低凈空尺寸,特別適用于高度受限制的場所以及一些比較矮小的廠房,即使在常規場所也同樣適用
龍升牌20噸低凈空環鏈電動葫蘆屬于煙臺開發區龍海起重工具有限公司旗下品牌產品,產品機械部分保質12個月,電器部分保質6個月(易損件除外),在產品保質周期內正常使用的情況下出現的質量問題,我公司可提供免費維修、免費更換配件、如因質量問題維修或更換配件仍然不能達到正常使用,可免費更換主機(產品附件以及易損件除外)由此產生的運輸,維修費用由我公司承擔。非質量問題我公司將收費處理,所產生的運輸、維修等費用由客戶承擔。 注意:不論產品出現上述那種問題,客戶需要提供清楚的故障視頻以及產品故障圖片,并說明使用方式。
選材與工藝: ●【殼體】20噸低凈空環鏈電動葫蘆采用沖壓鋼構殼體,安全耐用,外觀精美; ●【齒輪】20噸低凈空環鏈電動葫蘆齒輪經過高溫淬火處理,韌性強度好,設計變速齒輪箱,可加油,對齒輪保護好; ●【鏈條】20噸低凈空環鏈電動葫蘆鏈條采用低碳鋼材質并經炭黑處理的80級起重鏈條,安全系數高,耐磨壽命長; ●【數控加工】20噸低凈空環鏈電動葫蘆所有零部件均數控機床加工,零部件契合度好,產品使用壽命長。 安全設計: ●【電子限位開關】20噸低凈空環鏈電動葫蘆有效防止鏈條過度旋緊; ●【雙剎車】20噸低凈空環鏈電動葫蘆制動可靠,剎車即時性好; ●【逆相保護】在安線時如線路接錯,電機與電器不會動作; ●【防護等級】IP54防塵、防水級別;【絕緣等級】F級。
|
|||||||||
|
相關產品
|









