| 產品描述 | 技術參數 | 包裝參數 | 技術文檔 | |||
|
單作用重載分離式千斤頂介紹 【產品名稱】單作用重載分離式千斤頂 【產品品牌】龍升品牌 【產品規格】50T~800T,工作壓力不超過70MPa 【產品保質】保質期12個月 【產品定制】可非標定制,詳情可咨詢 【產品來源】分離式千斤頂 【典型應用】可與液壓泵(手動泵/電動泵)配套使用,用于橋梁、隧道、電力、煤礦、船廠、中鐵等領域內重型設備頂升、安裝等。
單作用重載分離式千斤頂質保 龍升品牌單作用重載分離式千斤頂屬于煙臺開發區龍海起重工具有限公司旗下品牌產品,產品保質周期為1年(易損件除外),在產品保質周期內正常使用的情況下出現的質量問題,我公司可提供免費維修、免費更換配件、如因質量問題維修或更換配件仍然不能達到正常使用,可免費更換主機(產品附件以及易損件除外)由此產生的運輸,維修費用由我公司承擔。非質量問題我公司將收費處理,所產生的運輸、維修等費用由客戶承擔。 注意:不論產品出現上述哪種問題,客戶需要提供清楚的故障視頻以及產品故障圖片,并說明使用方式。 單作用重載分離式千斤頂特點 ●龍升單作用重載分離式千斤頂采用105%安全載荷設計,可滿載使用,即100T千斤頂可頂100T。 ●單作用設計,重力復位,使用方便。 ●單作用重載分離式千斤頂經久耐用: - 烤漆表面耐腐蝕能力更強; - 活塞桿鍍硬鉻, 防止刮傷和腐蝕; - 防塵圈減少污染, 延長液壓油缸使用壽命;
- 特殊的導向環設計對偏移中心的壓力提供支撐, 并有效阻止活塞桿與內壁直接摩擦, 以減少磨損, 延長液壓缸的使用壽命;
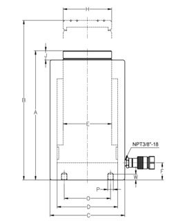
●單作用重載分離式千斤頂底部安裝孔提供可靠便捷的安裝且所有型號均帶有NPT3/8"-18快速接頭與防塵帽。
●單作用重載分離式千斤頂可根據工況制定偏載壓頭及特殊用途的千斤頂。
單作用重載分離式千斤頂配泵使用 (單作用手動泵、帶壓力表手動泵、超高壓電動泵等,我公司均有提供,可根據您的工況給以專業的選型、搭配方案建議、詳細技術解答)。
單作用重載分離式千斤頂配套液壓泵
單作用重載分離式千斤頂相關產品: |
||||||
|
相關產品
|









