| 產品描述 | 技術參數 | 包裝參數 | 技術文檔 | ||||||
【產品名稱】Hydrobull小型電動液壓小吊機(小型電動配重起重機) 【產品品牌】德國HydroBull 【產品規格】載荷500kg 【產品保質】保質兩年 【產品認證】符合 Euronorm 2006/42/EC 和 DGUV68 【品牌資訊】德國HydroBull品牌詳情 【典型應用】 適用于車間工具更換、發動機維修、天花板的維護,汽車制造、航空制造、裝配等車間及倉庫的吊運及裝卸等場合
德國HydroBull 小型電動液壓小吊機為德國原裝進口產品,保質2年,我公司承諾凡是客戶在我公司定購的進口類產品均為原裝正品,絕不存在拆件貨,換件貨,假冒品牌產品,凡客戶從我公司定購德國HydroBull品牌產品如收到貨物時發現有拆件貨,換件貨,假冒、假貨仿貨均以100倍金額賠償。
●ITI500B德國小型電動液壓小吊機用于5個懸臂位置;后置底盤、配重填充,可直接接近負載和機器; ●ITI500B小型電動配重起重機電動升降,操作方便省力; ●通過拉動和推動手動轉向手柄來驅動; ●hydrobull小型電動液壓小吊機可調升降速度,慢慢接近負載,對于更換工具、需要精確定位時特別有用; ●設有緊急停止按鈕,可立即停止作業更安全; ●ITI500B小型電動配重起重機月使用頻率達100次且該品牌產品使用壽命長,至今仍為30-40年前的起重機提供配件。
ITI500B小型電動配重起重機操作介紹: 〖升降〗*只需按一下手動開關上的按鈕,即可操控電池 驅動的高質量的鍍鋅DIN安全鉤。 *使用手動開關,操作員可以在3m外獨立于起重機靈活地進行升降操作。這意味著您可以站立在靠近負載的位置,以觀察或協助精確安裝,實現更快更安全作業。
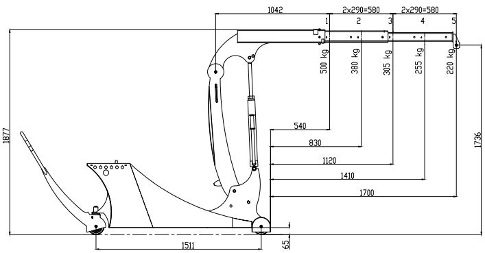
〖駕駛〗通過手動拉動方向盤上的把手,幾乎可以旋轉180度。 〖停車〗通過抬高轉向手柄,起重機會在空轉期間自動鎖定。 〖臂〗具有5個設置,只需用套筒銷系統拉出伸縮臂即可輕松選擇。 |
|||||||||
|
相關產品
|










