| 產品描述 | 技術參數 | 包裝參數 | 技術文檔 | |||
|
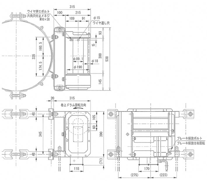
FUJI GX型電動卷揚機介紹 【產品名稱】GX型電動卷揚機 【產品品牌】日本FUJI品牌 【產品規格】556kg~1T 【產品保質】保質期12個月 【典型應用】GX型電動卷揚機可主要用于野外升降網 【產品目錄】電動卷揚機
FUJI GX型電動卷揚機圖片
●防雨、防銹、防塵、超輕緊湊型絞盤 FUJI GX型電動卷揚機介紹的電機、減速機構、電磁制動器等均裝在防銹鋁外殼和工程塑料外殼中,以保護它們免受灰塵和雨滴的影響。 ●停電時的高性能電磁制動器和制動器釋放裝置 FUJI GX型電動卷揚機介紹采用經過 300,000次內部耐久性測試證實的高性能電磁制動器。 在停電的情況下,您可以通過轉動翼形螺釘輕松降低網。 ●電動絞盤安裝簡單 由于FUJI GX型電動卷揚機介紹是垂直類型,需要較少的桿前突出,因此不會損壞網。 |
||||||
|
相關產品
|










