| 產品描述 | 技術參數 | 包裝參數 | 技術文檔 | |||||
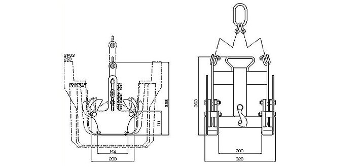
【產品名稱】CU-TJE型U字溝用夾鉗(CU-TJE三木混凝土吊具) 【產品品牌】日本NETSUREN三木 【產品規格】600kg 【產品保質】保質期12個月 【適用鋼材】U字溝(240)、JIS道路側溝(250·300)、特殊側溝等吊上搬運適合的混凝土夾具。
● 三木CU-TJE型U字溝用夾鉗,是半自動裝卸式混凝土夾鉗; (相關產品:三木CU-TJ型U字溝用夾具”,是全自動裝卸式) ● CU-TJE三木混凝土吊具是內張式夾具,所以不用路邊紗線接觸;另外,一邊有墻壁等場合施工容易出來; ● 三木CU-TJE型U字溝用夾鉗,配套安全支架(止裂)使用。 |
||||||||
|
相關產品
|








